Проектирование двухэтажного коттеджа частного дома

Проектирование двухэтажных коттеджей – это умение угадывать пожелания заказчика, увидеть его глазами «дом мечты», оставаясь при этом в рамках предложенного бюджета. Команда Gladikov Project хорошо справляется с такими задачами, даже когда речь идет о завершении строительства, а не о подготовке проекта с ноля.
Создание проекта под неоконченное строительство
В Gladikov Project обратился заказчик с просьбой найти стилистическое решение для фасада наполовину построенного здания. Проектирование дома проще делать с чистого листа, чем придумывать что-то, опираясь на чужую идею. Тем не менее бюро взялось за эту сложную задачу и сумело её выполнить, ни на рубль не превысив выделенный бюджет.




Решение проблемы от Gladikov Project
Частное проектирование домов опирается на тщательный расчет. Любое художественное или стилистическое решение имеет свой денежный эквивалент. И чем сложнее решение, тем выше окончательная сумма строительства.

Имея четкие финансовые рамки и наполовину готовый дом, команда бюро спроектировала фасад в 5 этапов:
1. Поиск концепции
Проектирование загородных домов требует составления брифа, который поможет понять, что именно нравится заказчику, какой стиль ему ближе, как он привык жить. На этапе поиска концепции определяется направление, которым будет следовать бюро.
2. Предварительная оценка стоимости
Помогает понять, вписывается ли предложенная концепция в оговоренный бюджет. Из нескольких вариантов дизайна выбирается тот, который соответствует пожеланиям заказчика, а также не превышает суммы, выделенной на его реализацию.
3. Разработка рабочего проекта
Индивидуальное проектирование требует точных чертежей, прорисовку узлов примыкания материалов и конструкций. На этом этапе высчитываются предварительные сроки строительства, а также перепроверяется его стоимость. Это нужно, чтобы гарантировать качество воплощения разработанной идеи.
4. Окончательное суммирование бюджета
Утвержденный проект отправляется на финальный пересчет. Проектирование коттеджа включает множество пунктов, которые нужно учесть при суммировании бюджета. Здесь недопустимы ошибки, поэтому Gladikov Project особенно внимательно относится к этому этапу.
5. Составление графика строительно-монтажных работ


Варианты отделки фасадов частного дома рассматриваемые в процессе проектирования












Помимо поиска современного, архитектурного решения целью проекта было спланировать график строительно-монтажных работ, и распределить средства выделенные на фасадные работы.
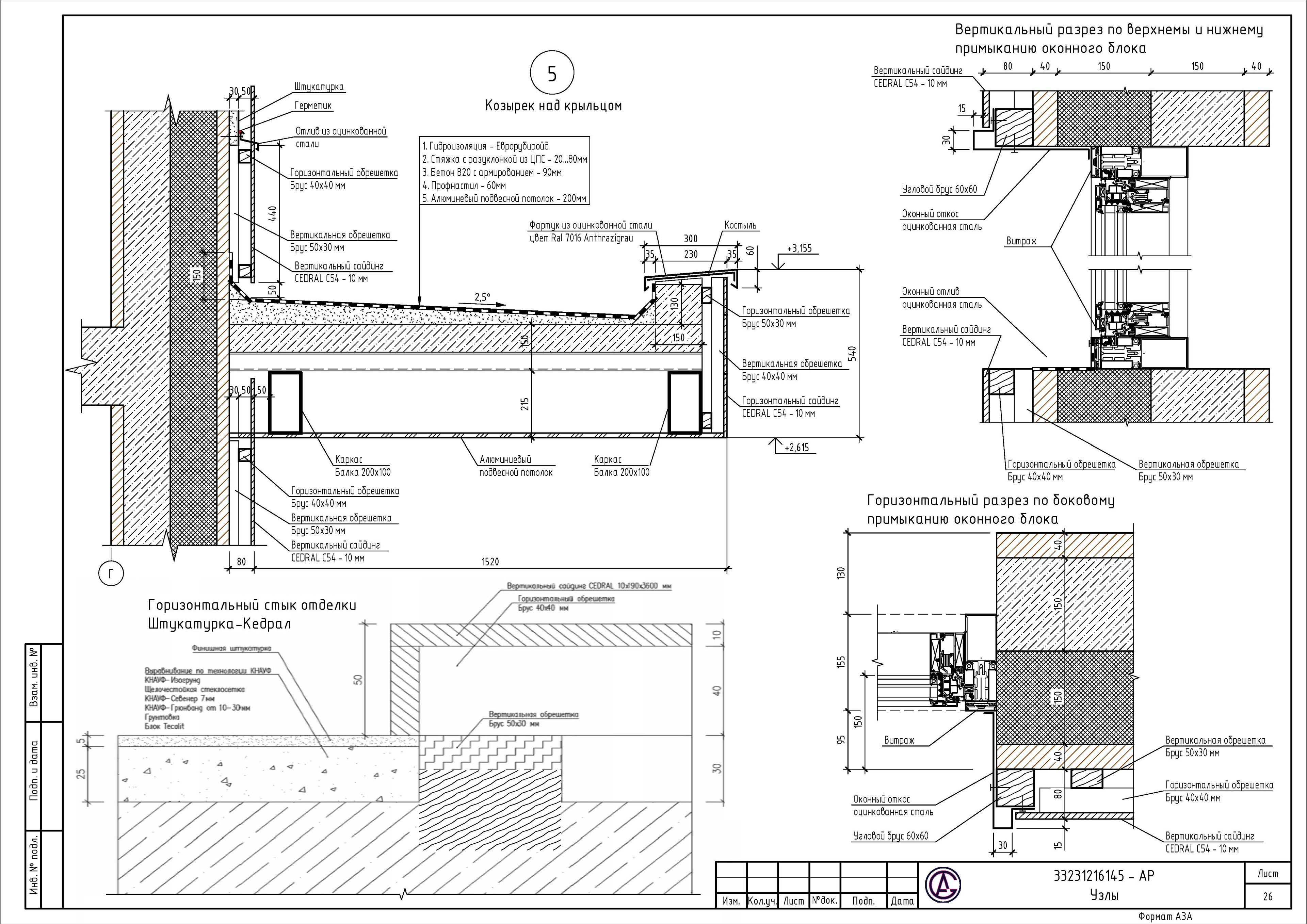
Для этого разрабатывался альбом рабочих чертежей с подробным описанием, размерами и спецификациями.
Для этого разрабатывался альбом рабочих чертежей с подробным описанием, размерами и спецификациями.









Так же проводился конкурс на отдельные виды работ и поставку материалов. Команда проекта формировала запрос, составляла ТЗ для каждого подрядчика и поставщика. А так же консультировала заказчика и других участников проекта. При необходимости прорабатывались узлы примыкания различных материалов и конструкций.

Индивидуальное проектирование домов позволяет до начала строительства определить сроки его окончания. Конечно, финальный дедлайн будет зависеть только от подрядчика, который примется за реализацию наших наработок. Но в целом вы будете знать, когда закончатся все работы.
Завершив работу, наше бюро передало проект заказчику, который остался доволен и стильным фасадом, и окончательной стоимостью, и составленным графиком работ.